Di cosa può aver bisogno una giovane coppia con un bambino piccolo?
Sicuramente di una casa intima, dove poter crescere il piccolo pargoletto e dove cercare di avere un po’ di pace tra una poppata e un pannolino.
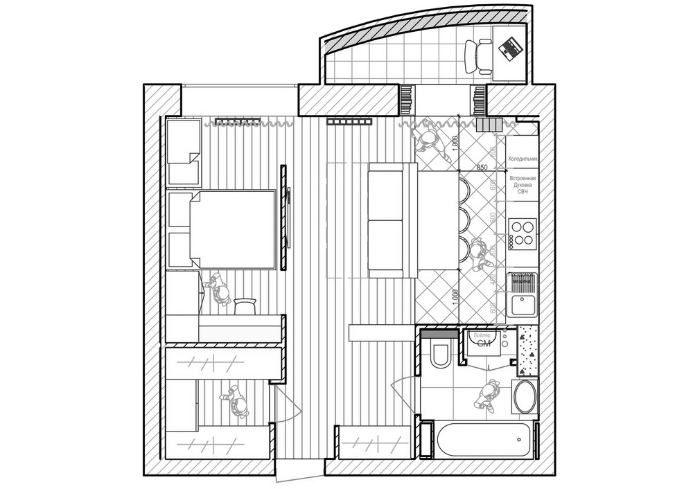
Anche se lo spazio a disposizione è di soli 46 mq, quello che conta è una pianificazione (degli spazi così come delle cose da fare) intelligente per non sprecare spazio & tempo.
What does a young couple with a small child may need?
Definitely an intimate house, where to grow the small little baby and where to get a little peace between feedings and diaper.
Even if the available space is only 46 square meters, what matters is a smart (of space as well as to-do) schedule in order not to waste space & time.

http://www.pinwin.ru/konkurs.php?kact=2&knid=63&rbid=9647

http://www.pinwin.ru/konkurs.php?kact=2&knid=63&rbid=9647
Lo spazio è quello che è quindi porte, muri e tramezzi divisori sono quasi ridotti a zero.
Elementi divisori leggeri e provvisori, per separare visivamente senza rendere claustrofobici gli ambienti.
L’interior designer Marina Tosy è riuscita a portare luce e allegria in questa piccola casa in quel di Surgut.
Space is what it is so doors, walls and partition walls are almost nil.
Partitions are light and temporary, to visually separate without making claustrophobic environments.
The interior designer Marina Tosy managed to bring light and joy in this small house in the Surgut.

http://www.pinwin.ru/konkurs.php?kact=2&knid=63&rbid=9647

http://www.pinwin.ru/konkurs.php?kact=2&knid=63&rbid=9647

http://www.pinwin.ru/konkurs.php?kact=2&knid=63&rbid=9647
Ci sono tanti dettagli che meritano nota e che possono essere tranquillamente riportati in altre case: la tenda composta da pannelli liberamente agganciabili e combinabili, per creare un pattern originale e dividere due ambienti (in questo caso la cucina dal soggiorno).
La parete lavagna, ma non in nero: come ben sapete la pittura lavagna può essere creata in differenti colori.
Armadi con ante a specchio, per allargare e moltiplicare lo spazio.
Infine: ma quanto è bella la parete del soggiorno, omaggio a Kandinsky?
There are many details that deserve note and that can be used in other houses: the tent consists of freely dockable panels, to create an original pattern and split two environments (in this case kitchen from living room).
The chalckboard wall, but not in black: as you know the blackboard painting can be created in different colors.
Wardrobes with mirrored doors, to expand and multiply the space.
Finally: but how beautiful the living room wall is, a tribute to Kandinsky?

http://www.pinwin.ru/konkurs.php?kact=2&knid=63&rbid=9647

http://www.pinwin.ru/konkurs.php?kact=2&knid=63&rbid=9647

http://www.pinwin.ru/konkurs.php?kact=2&knid=63&rbid=9647http://www.pinwin.ru/konkurs.php?kact=2&knid=63&rbid=9647

http://www.pinwin.ru/konkurs.php?kact=2&knid=63&rbid=9647
Ehi donne potete stare tranquille: avete visto che cabina armadio? E la cucina??
Direi che c’è spazio per tutte le nostre scarpe & pentole 😉
Hey women you stay calm: do you see that closet? And the kitchen ??
I would say that there is room enough for all our shoes & pans 😉
http://www.pinwin.ru/konkurs.php?kact=2&knid=63&rbid=9647





molto particolare.. ma piace!!
si si io la trovo giovane e allegra 🙂
Linee pulite, colori chiari che fanno risaltare la caratteristica principale della casa: la luce/luminosità. Mi piace molto.
Buonanotte
Si tutta la luce che c’è è davvero bellissima 🙂